Vitoria-Gasteiz (ARMENTIA)

Chalet Independiente en venta en Vitoria-Gasteiz (ref.1844)

451,98 m2 |    5 |     3 |    1 |    4 |
1.250.000 €
Vitoria-Gasteiz (ARMENTIA)

Chalet Independiente en venta en Vitoria-Gasteiz

451,98 m2  5 Habitaciones  3 Baños  1 Trastero  4 Garaje
1.250.000 €

Se vende chalet independiente en Armentia, zona residencial de Uleta, próximo a centros educativos, zonas de ocio, instalaciones deportivas, restaurantes  y supermercados, muy bien comunicado con el centro de la ciudad con la línea de Autobuses municipales.

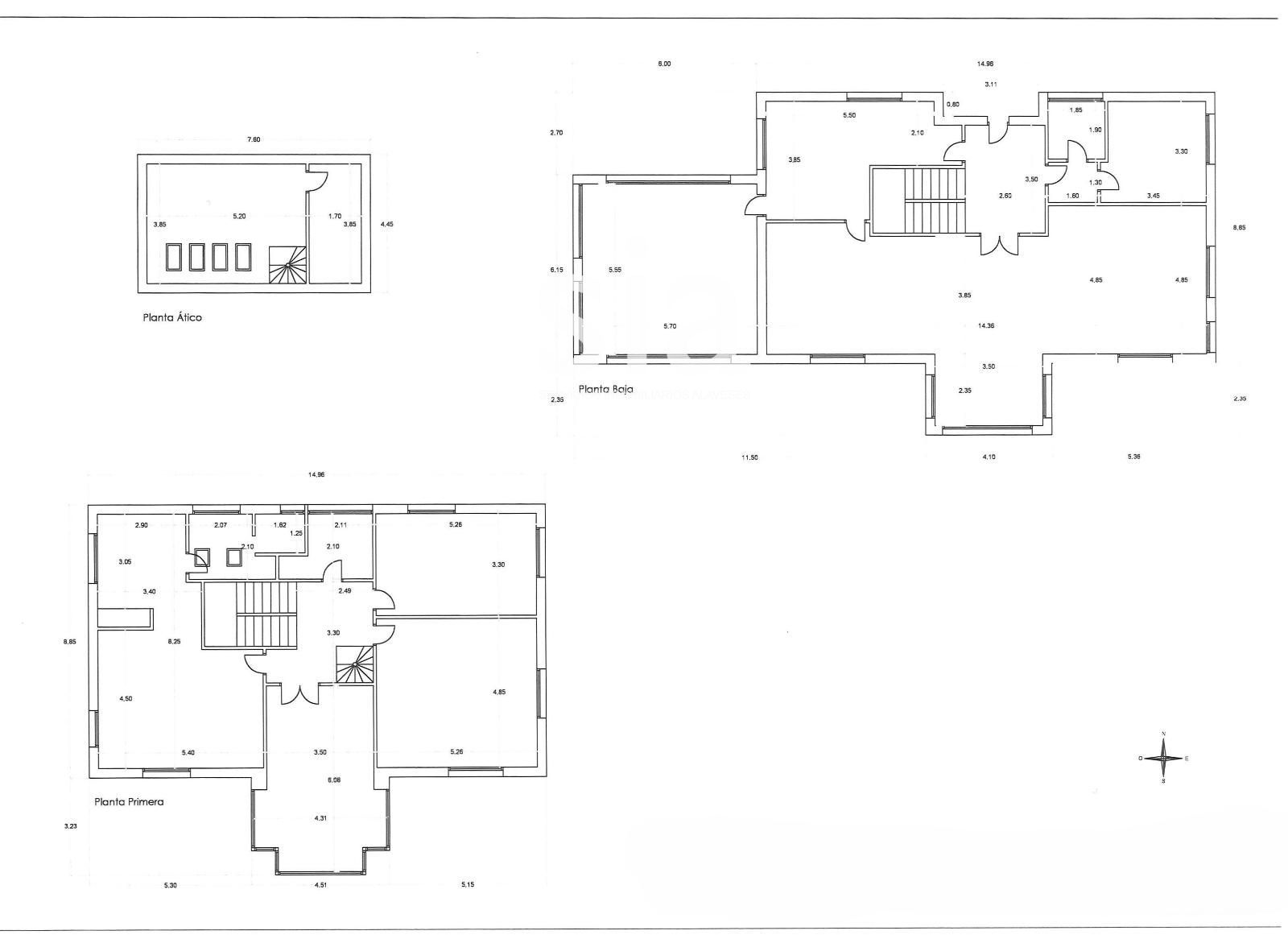
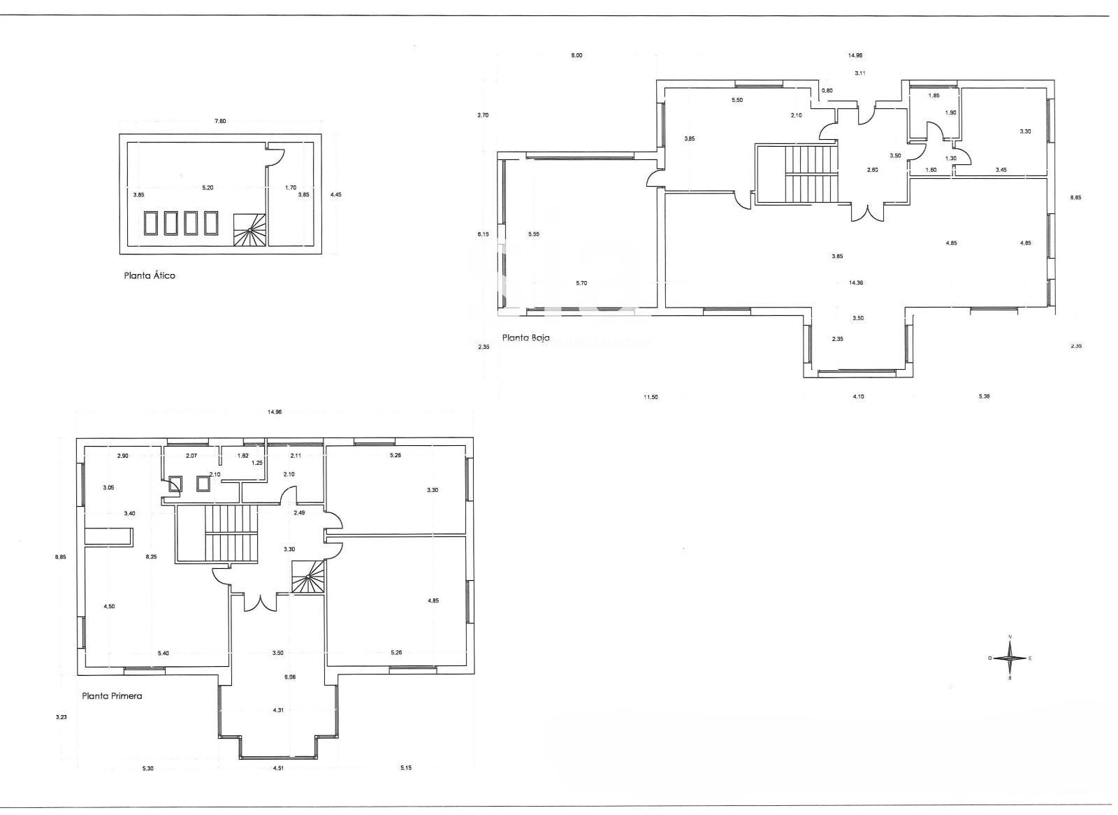
La vivienda esta construida en una parcela de 1.000 m2 con una superficie construida de 451,98 m2 de los cuales 390,92 m2 son útiles.

Se distribuye en planta baja donde encontramos un luminoso y amplio salón comedor, cocina, txoko con acceso desde la cocina, 1 dormitorio y 1 baño.

En la primera planta se encuentran 4 dormitorios uno de ellos en suite con vestidor, distribuidor y otro baño completo.

En el ático encontramos un estudio y trastero.

Planta sótano amplio garaje con capacidad para 4 vehículos, sala de calderas y bodega.

Calefacción por suelo radiante .

Dispone de un bonito jardín consolidado con riego automático,  árboles, rosales y setos que permiten tener una gran privacidad.

Información personalizada en nuestras oficinas.


Construidos 451,98 m2
Útiles 390,92 m2
Parcela 1.000 m2
Dormitorios 5
Baños 3
Cocina Amueblada
Calefacción Gas
Trastero
Garajes 4
Carp. Interior Lacada Blanco
Estado Buen estado
Tipo de suelo Cerámicos, baldosa de barro y moqueta
Garaje
Calificación Energética (E) VER
Luz
Gas
Agua
Ubicación
La dirección del inmueble es aproximada.



Solicita información

Contáctanos

Si deseas más información sobre esta propiedad, por favor, rellena todos los campos del formulario:

Te puede interesar

 
SIA SERVICIOS INMIBILIARIOS Vende Chalet Independiente en Vitoria-Gasteiz, con 401 m2, 5 habitaciones y 4 baños, Trastero y Calefacción Individual a gas.
1.500.000 €
 
EXCLUSIVA SIA Vende Chalet Independiente en venta en Urbanización Cerro de Estibaliz en parcela de 2000m2 con amplio jardín.
698.000 €
 
SIA SERVICIOS INMOBILIARIOS Vende casa de piedra en la encantadora zona de Zigoitia, para actualizar con muchas posibilidades. 600 m2 en tres plantas. Tejado arreglado. Cuadra, pajar, patio, taller y garaje.
380.000 €
Paseo de la Música 1 Bajo
01007 – Vitoria-Gasteiz

De lunes a viernes
9:00 a 14:00 - 16:00 a 19:00

Contáctanos
info@siaservicios.es
945 12 80 60