Vitoria-Gasteiz (LAKUA)

SIA INMOBILIARIA Vende local en Plaza Cataluña (ref.2456)

77,27 m2 |
126.000 €
Vitoria-Gasteiz (LAKUA)

SIA INMOBILIARIA Vende local en Plaza Cataluña

77,27 m2
126.000 €

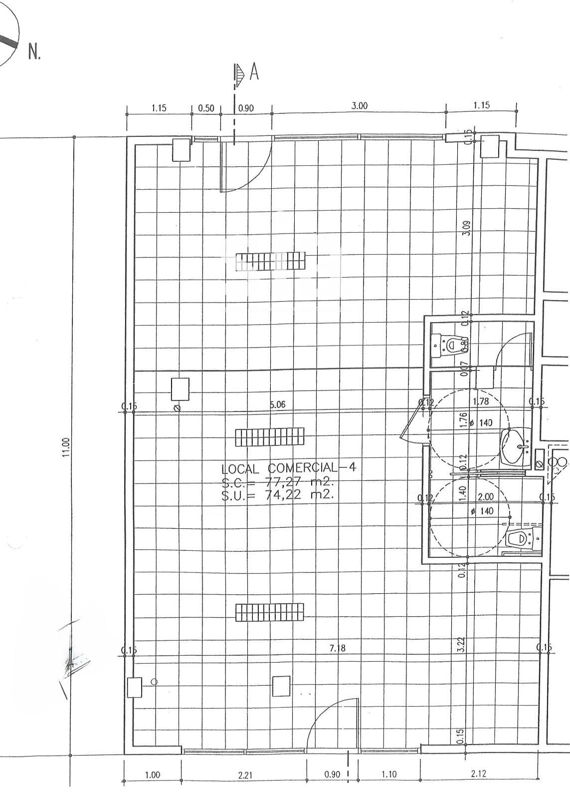
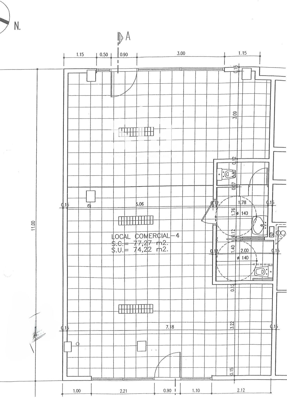
SIA SERVICIOS INMOBILIARIOS Vende local comercial en Plaza Cataluña en Lakua. 

El local cuenta con 77,27 m2 construidos distribuidos en amplia zona comercial,  un despacho, zona de almacenaje, dos escaparates y aseos adaptados para personas con movilidad reducida.

Cuenta con dos puertas de acceso, por la calle Orio y por la Plaza Cataluña.

Los aseos tienen ventilación natural con rejillas en techo y conducto hasta la cubierta.

Dispone de aire acondicionado y acceso para minusválidos, además de persianas metálicas de seguridad con mando.

Situado a  pie de calle  en  zona peatonal con mucho transito y rodeada de comercios. 

Construidos 77,27 m2
Útiles 74,22 m2
Estado Buen estado
Aire acondicionado
Adaptado
Calificación Energética (D) VER
Ubicación



Solicita información

Contáctanos

Si deseas más información sobre esta propiedad, por favor, rellena todos los campos del formulario:

Te puede interesar

 
SIA SERVICIOS INMOBILIARIOS Vende Local Comercial en Vitoria-Gasteiz junto al parque de la Florida, con 135 m2  útiles y con amplio escaparate.
285.000 €
 
Local Comercial en venta en Vitoria-Gasteiz y con 325 m2.
360.000 €
 
SIA SERVICIOS INMOBILIARIOS Vende amplio local comercial en el corazón de la ciudad en Vitoria-Gasteiz, 3 Aseos, con Escaparate y Cámara Frigorífica, anteriormente era un supermercado.
684.000 €
Paseo de la Música 1 Bajo
01007 – Vitoria-Gasteiz

De lunes a viernes
9:00 a 14:00 - 16:00 a 19:00

Contáctanos
info@siaservicios.es
945 12 80 60